依家网

更新于 2024-03-29

恒大天玺公馆

关注
售完 商业 毛坯 已开盘 品牌地产
66500元/㎡
参考均价
300万以下
咨询首付
1房
53㎡
开盘 2020-12-01 新开盘通知
位置
罗湖桂园路与规划红宝路交汇处西南侧
发地址到手机
变价通知
组团砍价

13826574263
15899920080

立即咨询售楼现场优惠(安全通话)

恒大天玺公馆户型图

余房查询
  • 全部户型(3)
  • 1室(2)
  • 平层(1)
成交价查询
余房查询
买房交流群 3042 人正在讨论深圳楼市
深圳买房交流群-65群(338)
楼盘评测报告

7.2

综合评分
楼盘品质
8
社区配套
6
区域价值
7.5

恒大天玺公馆楼盘信息

领取楼盘评测报告
基本信息
  • 楼盘名称: 恒大天玺公馆
  • 楼盘别名: 恒大蔡屋围项目,红围坊改造项目
  • 区域商圈: 罗湖 -蔡屋围
  • 物业类型: 商业
  • 参考单价: 66500元/㎡ 降价通知
  • 产权年限: 商住公寓40年
  • 开盘/加推: 2020-12-01 新开盘通知
  • 销售状态: 售完
  • 楼盘地址: 罗湖桂园路与规划红宝路交汇处西南侧 发地址到手机
  • 售楼处地址: 深圳市罗湖区宝安南路振业大厦恒大展示中心
建筑规划
  • 交房时间: 2023-12-31
  • 装修情况: 精装修,公共部分精装
  • 楼栋总数: 2栋
  • 规划户数: 589户
  • 占地面积: 5277㎡
  • 建筑面积: 54001㎡
  • 容积率: 10
  • 绿化率: 30%
  • 建筑类型: 塔楼,高层
  • 主力户型: 1室(2) 、 平层(1)
  • 开发公司: 深圳市建设(集团)有限公司,深圳市建设(集团)有限公司
领取完整楼盘评测报告,楼盘优劣全知道
售卖资格
预售证号 发证时间 绑定楼栋
  • 深房许字(2020)罗湖006号 2020-12-18 2栋
  • 深房许字(2020)罗湖006号 2020-11-27 2栋
查看全部
生活配套
  • 物业公司: 金碧物业有限公司深圳分公司
  • 物业费: 8元/㎡/月
  • 车位数: 170个停车位
  • 周边配套:
    • 交通附近有桂圆街道办站、振业大厦站、红桂**站、市工商联站、人民桥站、地王大厦站
    • 中**桂园**、向阳幼儿园、红桂**、百草园**、红桂**
    • 综合商场蔡屋围商圈、东门商圈、万象城商圈、国贸商圈
    • 医院深圳市人民医院**门诊部、深圳中医院等公立三甲医院
    • 其他梧桐,东湖
领取完整楼盘评测报告,楼盘优劣全知道
楼盘介绍

项目介绍

深圳恒大天玺公馆是万亿恒大落子蔡屋围又一精品,项目地处深南大道,坐拥四大商圈,四轨交汇,三口岸即达,周边一河五园环绕。占地约5277.04㎡,总建筑面积约5.4万㎡,精心打造集公寓及裙楼商业于一体的城芯资产,以城央天际瞰景公寓,精筑都荟人文标杆。

区位介绍

深圳恒大天玺公馆是万亿恒大落子蔡屋围又一精品,项目地处深南大道,坐拥四大商圈,四轨交汇,三口岸即达,周边一河五园环绕。占地约5277.04㎡,总建筑面积约5.4万㎡,精心打造集公寓及裙楼商业于一体的城芯资产,以城央天际瞰景公寓,精筑都荟人文标杆。

规划设计

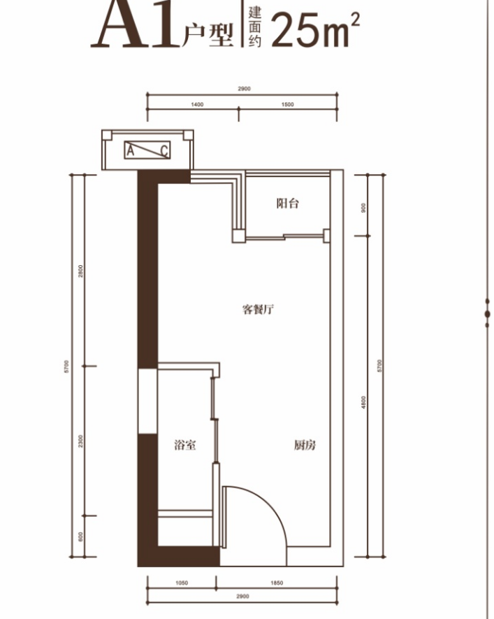
恒大天玺公馆占地约5277.04㎡,总建筑面积约5.4万㎡。绿化率:30%,容积率:10.23,停车位:170。恒大天玺公馆在售建面约25-29㎡人性化灵动空间,6梯19户舒适梯户比。3.6m沃想空间,户户带阳台。

景观特色

深圳恒大天玺公馆是万亿恒大落子蔡屋围又一精品,项目地处深南大道,坐拥四大商圈,四轨交汇,三口岸即达,周边一河五园环绕。

建筑风格

恒大天玺公馆建筑风格为“现代、简约”,通过各种色条的搭配诠释全新的住宅风貌,体现项目建筑简洁、大气、高尚的气质。采用法式原萃经典Art Deco建筑风格,高贵典雅的三段式外立面分色设计,线条凹凸有致,刚劲有力,呈现出独有的力量感,每一处细节皆悉心考究,美感与品质共存。

项目优势

恒大天玺公馆地处深南大道,坐拥四大商圈,四轨交汇,三口岸即达,周边一河五园环绕。项目选用一线品牌进行装修,用最有品味的装修去打造最有质感的品质生活,拎包即可入住。物业方面,御用一级资质金碧物业:独创“1530”特色服务——1分钟记录、5分钟到场、30分钟服务维修、24小时不间断的呵护,为业主带来真正省心、安心、舒心的高端品质生活。
更多信息,咨询楼盘置业管家
  • 楼盘点评
  • 地铁比较近,户型比较宽敞没有小户型,350米有龙华区第三实验中学,医院也比较近500米,属于大浪中心,附近也有商场

  • 星河·星悦云邸在地铁6号线阳台山东站旁,是一个约53万㎡的地铁口综合体,规划配套COCO City,在售是一期95-124㎡的三到四房,周边1公里有约28万㎡城市级阳台山森林公园,大浪文化、体育中心、妇幼保健院等。

  • 在售栋数一二三四单元面积,在售面积:96-114-124平,3梯6户,47层48层,2.9米层高,2025年12月开发商: 占地:2万平米 建面:15.4万平米,总53万平米

本楼盘交流群,3042 人正在讨论

房价走势 完整走势 ﹥
楼盘均价 25000元/㎡

环比上月持平

区域均价 36366元/㎡

环比上月持平

专属置业报告
您的购房需求
区域价值分析
猜你喜欢
买房群
看了这么久,立即咨询售楼现场优惠吧  ↓