依家网

更新于 2024-03-29

京基云熙阁

关注
在售 住宅 精装修 已开盘 景观居所
44000元/㎡
参考均价
300万以下
咨询首付
2-4房
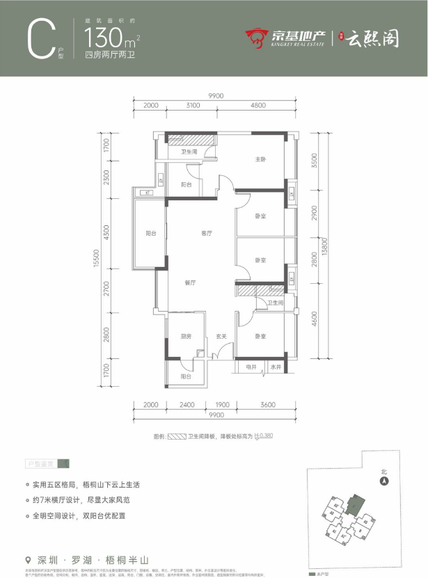
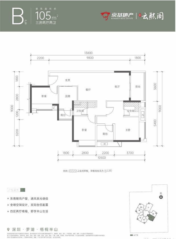
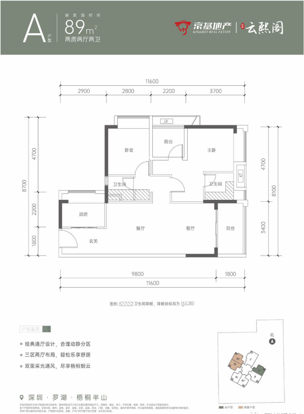
89-130㎡
开盘 2024-03-01 新开盘通知
位置
罗湖莲塘街道梧桐山以南,云桐二路以北
发地址到手机
变价通知
组团砍价

13826574263
15899920080

立即咨询售楼现场优惠(安全通话)

京基云熙阁户型图

余房查询
  • 全部户型(6)
  • 2室(2)
  • 3室(2)
  • 4室(2)
成交价查询
余房查询
买房交流群 3042 人正在讨论深圳楼市
深圳买房交流群-65群(338)
楼盘评测报告

7.2

综合评分
楼盘品质
8
社区配套
6
区域价值
7.5

京基云熙阁楼盘信息

领取楼盘评测报告
基本信息
  • 楼盘名称: 京基云熙阁
  • 楼盘别名: 京基梧桐轩
  • 区域商圈: 罗湖 -莲塘
  • 物业类型: 住宅
  • 参考单价: 44000元/㎡ 降价通知
  • 产权年限: 普通住宅70年
  • 开盘/加推: 2024-03-01 新开盘通知
  • 销售状态: 在售
  • 楼盘地址: 罗湖莲塘街道梧桐山以南,云桐二路以北 发地址到手机
  • 售楼处地址: 罗湖区莲塘街道长岭中心路与罗沙路交汇处
建筑规划
  • 交房时间: 2024-05-31
  • 装修情况: 毛坯,公共部分精装
  • 楼栋总数: 1栋
  • 规划户数: 1218户
  • 占地面积: 5319㎡
  • 建筑面积: 23302㎡
  • 容积率: 3
  • 绿化率: 35%
  • 建筑类型: 塔楼
  • 主力户型: 2室(2) 、 3室(2) 、 4室(2)
  • 开发公司: 深圳市启楷房地产开发有限公司
领取完整楼盘评测报告,楼盘优劣全知道
售卖资格
预售证号 发证时间 绑定楼栋
  • 深房许字(2023)罗湖002号 2023-09-05 #1
  • 深房许字(2023)罗湖002号 2023-09-05
查看全部
生活配套
  • 物业公司: 深圳市京基物业管理有限公司
  • 物业费: 6元/㎡/月
  • 车位数: 地下停车位:151个
  • 周边配套:
    • 生态:梧桐山、仙湖、仙湖植物园(弘法寺)、东湖公园、仙桐体育公园(国内最大户外攀岩地)、盐田中央公园(约19.5公里海滨栈道),大小梅沙,超配山湖海园资源;
    • 教育:1.5公里范围内多所学校环伺;
    • 医疗:紧邻三级甲等医院罗湖中医院,护航家人健康;
    • 商业:莲塘商业圈/壹海城,罗湖“金三角”商圈,KK MALL、万象城、大剧院、东门步行街、国贸天虹,吃喝玩乐应有尽有;
领取完整楼盘评测报告,楼盘优劣全知道
楼盘介绍

项目介绍

京基云熙阁开发商是京基地产,28年实力房企,国家房地产开发一级资质企业,深圳房地产开发十强企业TOP3,深圳房地产开发企业社会责任企业TOP1。优质物业服务成为买房刚性需求。京基物业是国家一级资质物业管理企业,项目业主可尊享京基100住宅同等标准物业服务。

区位介绍

京基云熙阁项目位于深圳正统中心罗湖。深圳只有关内一个中心区,其他都是功能区。中心区是高配,功能区是标配,中心区永远比功能区更有地位、有政策、有资源、有收益。莲塘作为罗湖大手笔投资5790亿布局十大重点片区之一,定位为深港融合中心,成为深港跨境口岸黄金圈新宠。罗湖大手笔投资5790亿布局十大重点片区,加上华润湖贝/京基水贝/木头龙三大标志性旧改陆续入市,罗湖将成为深圳关内最具市场热度和发展前景的区域之一。

规划设计

京基云熙阁项目一期是小高层和叠墅,15年已售完。二期占地约0.53万平方米,建面约2.33万㎡。二期为高端纯粹住区,2.84超低容积率,2梯7户,车位比约1:1,社区还配套了泳池和半山私家花园。

景观特色

京基云熙阁紧邻梧桐山、仙湖、仙湖植物园(弘法寺)、东湖公园、仙桐体育公园(国内最大户外攀岩地)、盐田中央公园(约19.5公里海滨栈道),大小梅沙,超配山湖海园资源

建筑风格

京基云熙阁建筑风格为“现代、简约”,通过各种色条的搭配诠释全新的住宅风貌,体现项目建筑简洁、大气、高尚的气质。采用法式原萃经典Art Deco建筑风格,高贵典雅的三段式外立面分色设计,线条凹凸有致,刚劲有力,呈现出独有的力量感,每一处细节皆悉心考究,美感与品质共存。

项目优势

京基云熙阁项目位于“深圳城市半山黄金家族”之首梧桐半山,占据罗湖莲塘片区最核心位置和最好配套资源,拥有不可复制的山湖海园超配生态资源。项目5min莲塘商业圈/壹海城,15min罗湖“金三角”商圈,KK MALL、万象城、大剧院、东门步行街、国贸天虹,吃喝玩乐应有尽有;1.5公里范围内多所学校环伺,拥有一站式优质教育资源;
更多信息,咨询楼盘置业管家
  • 楼盘点评
  • 地铁比较近,户型比较宽敞没有小户型,350米有龙华区第三实验中学,医院也比较近500米,属于大浪中心,附近也有商场

  • 卷价格,品质不减配 红山之上·都心理想生活范本 约31万㎡稀缺大社区大配套 建面约80-113㎡甄选3-4房 总价420万内任选80平三房 总价465万内任选89平三房

  • 在售面积:96-99-116-118平 1栋一单元3梯5户,二单元3梯4户 2025年9月交房,使用率81%,44层 开发商:宏发 占地:4.8万平米 建面:55万平米

本楼盘交流群,3042 人正在讨论

房价走势 完整走势 ﹥
楼盘均价 25000元/㎡

环比上月持平

区域均价 36366元/㎡

环比上月持平

专属置业报告
您的购房需求
区域价值分析
猜你喜欢
买房群
看了这么久,立即咨询售楼现场优惠吧  ↓