依家网

更新于 2024-03-29

龙光春城玖榕府

关注
在售 住宅 精装修 已开盘 品牌地产
27000元/㎡
参考均价
300万以下
咨询首付
3-4房
95-118㎡
开盘 2023-08-24 新开盘通知
位置
坪山区碧沙北路和龙勤路交汇处东南角(深圳国际影视城旁)
发地址到手机
变价通知
组团砍价

13826574263
15899920080

立即咨询售楼现场优惠(安全通话)

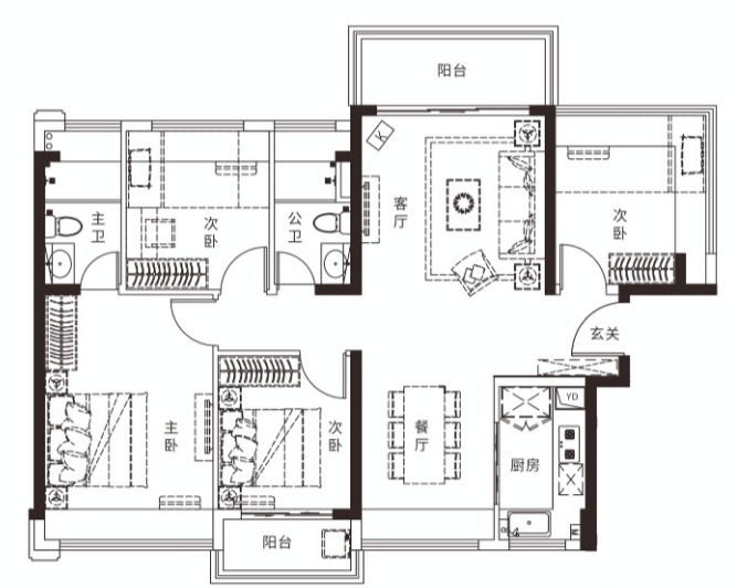
龙光春城玖榕府户型图

余房查询
  • 全部户型(6)
  • 3室(3)
  • 4室(3)
成交价查询
余房查询
买房交流群 3042 人正在讨论深圳楼市
深圳买房交流群-65群(338)
楼盘评测报告

7.2

综合评分
楼盘品质
8
社区配套
6
区域价值
7.5

龙光春城玖榕府楼盘信息

领取楼盘评测报告
基本信息
  • 楼盘名称: 龙光春城玖榕府
  • 楼盘别名: 龙光春城玖榕府
  • 区域商圈: 坪山区 -坪山
  • 物业类型: 住宅
  • 参考单价: 27000元/㎡ 降价通知
  • 产权年限: 普通住宅70年
  • 开盘/加推: 2023-08-24 新开盘通知
  • 销售状态: 在售
  • 楼盘地址: 坪山区碧沙北路和龙勤路交汇处东南角(深圳国际影视城旁) 发地址到手机
  • 售楼处地址: 坪山区碧沙北路和龙勤路交汇处东南角
建筑规划
  • 交房时间: 2025-12-31
  • 装修情况: 公共部分精装
  • 楼栋总数: 6栋
  • 规划户数: 937户
  • 占地面积: 26093㎡
  • 建筑面积: 108405㎡
  • 容积率: 4
  • 绿化率: 30%
  • 建筑类型: 塔楼
  • 主力户型: 3室(3) 、 4室(3)
  • 开发公司: 深圳市龙光春城投资发展有限公司
领取完整楼盘评测报告,楼盘优劣全知道
售卖资格
预售证号 发证时间 绑定楼栋
  • 深房许字(2023)坪山009号 2023-08-16 #1
生活配套
  • 物业公司: 广东龙光集团物业管理有限公司深圳分公司
  • 物业费: 5元/㎡/月
  • 车位数: 1150个
  • 周边配套:
    • ①学校配套:自带幼儿园,周边有坪山新区中山学校(初中部)、深圳市坪山区新合实验学校、深圳市坪山区中山小学 ;
    • ②医疗配套:坪山区人民医院 、萨米国际医疗中心、坪山平乐骨科医院(坪山中医院) ;
    • ③邮局;中国邮政;
    • ④休闲娱乐:大万世居(深圳客家古村落)、坪山体育中心(坪山*个国际赛式承办体育场);
    • ⑤生态资源:马峦山郊野公园、大山坡水库、坪山河;
    • ⑥银行:工商银行、中国银行、建设银行、浙商银行、中信银行;
    • ⑦商业:天虹商场、益田假日世界、潮商广场;
领取完整楼盘评测报告,楼盘优劣全知道
楼盘介绍

项目介绍

龙光春城玖榕府位于深圳坪山商务核心区,处于坪山区体育一路与八号路交叉路口西北侧,紧邻马峦山郊野公园、毗邻坪山体育中心,是龙光集团在深圳打造的第5个玖系住宅项目。项目占地1.3万平,建面6.3万平,共有5栋,一栋人才房、一栋幼儿园,三栋住宅。可售商品房共计355套。项目主力户型为96-117平的3-4房。龙光集团有限公司(「龙光集团」或「集团」,股份代号:3380.HK)创立于1996年,于2013年在香港联合交易所主板上市,是一家致力于构建美好生活的城市综合服务商。

区位介绍

龙光春城玖榕府地铁14号线预计 2022 年开通,深圳第二条快线连接“坪山-龙岗-福田”项目距离牛角龙站约1km。另有即将开通的东部过境通道和坪盐通道。坪山中心区粤港澳城市圈,都市生活圈已然成型。坪山作为深圳持续发 展的核心枢纽,后起之秀。地铁、云巴、高铁、公路路网等组成的多维轨道网,到2022 年有望成为东部交通枢纽中心。项目旁东侧一路之隔即为坪山体育中心,包含坪山国际网球中心、羽毛球馆、篮球场。项目南侧是马峦街道公共文化服务中心,是一个综合性文化活动中心,预计今年投入使用。

规划设计

龙光春城玖榕府居必择邻,交必良友。全线96-117㎡纯3-4房产品,为您限定优质圈层的精致居所。私享4A级马峦山郊野公园咫尺区级体育中心毗邻马峦公共文化服务中心自配套全龄生活系统全系精装,无忧住家。

景观特色

龙光春城玖榕府比肩香蜜湖的低密度中央居住区,既有城芯璀璨华灯,又有山湖星空点点。奔忙一日匆匆,在城芯聆听郊野公园夏夜蝉鸣,静享都市繁华里的诗与远方。

建筑风格

龙光春城玖榕府筑建筑风格为“现代、简约”,通过各种色条的搭配诠释全新的住宅风貌,体现项目建筑简洁、大气、高尚的气质。

项目优势

龙光春城玖榕府位于坪山商务中心区的中央居住区,居中心而享宁静,坪山核心商务区剩余可开发宅地极其稀少,中央居住区价值不可复制,错过难再。尊享一城礼遇1、东进战略,1.4万亿磅礴投资,坪山成为时代风口。深圳东进战略1.4万亿,坪山独占6027亿,坪山中心定位深圳东部都市圈中心。深圳高新区双核之一,坪山高新区规模为南山6倍,到2030年,拥有70万实际管理人口,园区内国家高新技术企业达3000家以上,打造四个千亿级产业集群。国家一级资质物业,尊贵贴心服务龙光物业具备国家一级物业资质,坚持“业主至上、服务**”的服务宗旨,为业主提供**佳的卫生和治安环境,提供以人为本的人性化服务。品牌物业,为生活保驾护航。
更多信息,咨询楼盘置业管家
  • 楼盘点评
  • 卷价格,品质不减配 红山之上·都心理想生活范本 约31万㎡稀缺大社区大配套 建面约80-113㎡甄选3-4房 总价420万内任选80平三房 总价465万内任选89平三房

  • 卷价格,品质不减配 红山之上·都心理想生活范本 约31万㎡稀缺大社区大配套 建面约80-113㎡甄选3-4房 总价420万内任选80平三房 总价465万内任选89平三房

  • 在售栋数一二三四单元面积,在售面积:96-114-124平,3梯6户,47层48层,2.9米层高,2025年12月开发商: 占地:2万平米 建面:15.4万平米,总53万平米

本楼盘交流群,3042 人正在讨论

房价走势 完整走势 ﹥
楼盘均价 25000元/㎡

环比上月持平

区域均价 36366元/㎡

环比上月持平

专属置业报告
您的购房需求
区域价值分析
猜你喜欢
买房群
看了这么久,立即咨询售楼现场优惠吧  ↓