依家网

更新于 2024-03-29

平吉上苑

关注
在售 住宅 毛坯 已开盘 高性价比
25000元/㎡
参考均价
300万以下
咨询首付
2-5房
60-132㎡
开盘 2016-07-24 新开盘通知
位置
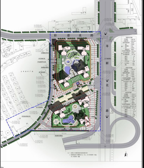
(龙岗区)平湖新河路与平新北路交汇处
发地址到手机
变价通知
组团砍价

13826574263
15899920080

立即咨询售楼现场优惠(安全通话)

平吉上苑户型图

余房查询
  • 全部户型(23)
  • 2室(5)
  • 3室(13)
  • 5室(5)
成交价查询
余房查询
买房交流群 3042 人正在讨论深圳楼市
深圳买房交流群-65群(338)
楼盘评测报告

7.2

综合评分
楼盘品质
8
社区配套
6
区域价值
7.5

平吉上苑楼盘信息

领取楼盘评测报告
基本信息
  • 楼盘名称: 平吉上苑
  • 楼盘别名: 平吉上苑一期
  • 区域商圈: 龙岗 -平湖
  • 物业类型: 住宅
  • 参考单价: 25000元/㎡ 降价通知
  • 产权年限: 普通住宅:70年
  • 开盘/加推: 2016-07-24 新开盘通知
  • 销售状态: 在售
  • 楼盘地址: (龙岗区)平湖新河路与平新北路交汇处 发地址到手机
  • 售楼处地址: 深圳市龙岗区平湖新河路与平新北路交汇处
建筑规划
  • 交房时间: 2018-08-31
  • 装修情况: 毛坯
  • 楼栋总数: 7栋
  • 规划户数: 1080
  • 占地面积: 28000㎡
  • 建筑面积: 113000㎡
  • 容积率: 4
  • 绿化率: 45%
  • 建筑类型: 塔楼
  • 主力户型: 2室(5) 、 3室(13) 、 5室(5)
  • 开发公司: 深圳市平日上房地产开发有限公司
领取完整楼盘评测报告,楼盘优劣全知道
售卖资格
预售证号 发证时间 绑定楼栋
  • 深房许字(2016)龙岗026号 2016-07-11 D# E# F# G#
  • 深房许字(2014)龙岗037号 2014-11-24 1#A座 1#B座 1#C座
查看全部
生活配套
  • 物业公司: 深圳市平日上物业管理有限公司
  • 物业费: 3元/㎡/月
  • 车位数: 500(地下444,地上56)辆
  • 周边配套:
    • 交通公交:兴万佳华百货站,途经有m412路;上木古村路口站,途经有881路、979路;
      地铁:在建的地铁10号线上木古站
    • 幼儿园南油幼儿园
    • 中**新木**,融湖九年制,平湖中心**
    • 综合商场华南城商圈,华润万家
    • 医院平湖人民医院,深圳市第三人民医院,上木古社区医院
    • 银行华南城周边四大国有银行等各大银行均有
    • 邮政中国邮政
    • 嫌恶设施 化工厂:金浩源胶袋
领取完整楼盘评测报告,楼盘优劣全知道
楼盘介绍

项目介绍

平吉上苑项目位于平新北路西侧,机荷高速北侧,与华南城仅一路之隔。

规划设计

项目已于2013年下半年动工,分为两期开发,可用占地面积2.8万平方米,总建面16万平方米,其中可计容建筑面积11.3万平方米,容积率4.0;项目预计5年完工。户型以80平米左右的三方以及120左右的四房为主。超高使用率
更多信息,咨询楼盘置业管家
  • 楼盘点评
  • 地铁比较近,户型比较宽敞没有小户型,350米有龙华区第三实验中学,医院也比较近500米,属于大浪中心,附近也有商场

  • 在售面积:96-99-116-118平 1栋一单元3梯5户,二单元3梯4户 2025年9月交房,使用率81%,44层 开发商:宏发 占地:4.8万平米 建面:55万平米

  • 星河·星悦云邸在地铁6号线阳台山东站旁,是一个约53万㎡的地铁口综合体,规划配套COCO City,在售是一期95-124㎡的三到四房,周边1公里有约28万㎡城市级阳台山森林公园,大浪文化、体育中心、妇幼保健院等。

本楼盘交流群,3042 人正在讨论

房价走势 完整走势 ﹥
楼盘均价 25000元/㎡

环比上月持平

区域均价 36366元/㎡

环比上月持平

专属置业报告
您的购房需求
区域价值分析
猜你喜欢
买房群
看了这么久,立即咨询售楼现场优惠吧  ↓