依家网

更新于 2024-03-29

正东名苑

关注
在售 住宅 精装修 已开盘 景观居所
83000元/㎡
参考均价
300万以下
咨询首付
2-3房
79-139㎡
开盘 2022-08-31 新开盘通知
位置
南山南山大道东,海德二道南侧,创业路北侧
发地址到手机
变价通知
组团砍价

13826574263
15899920080

立即咨询售楼现场优惠(安全通话)

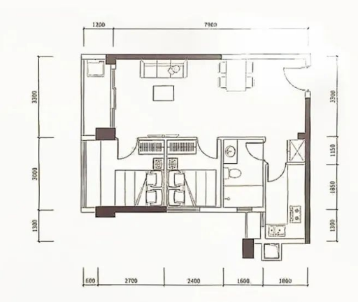
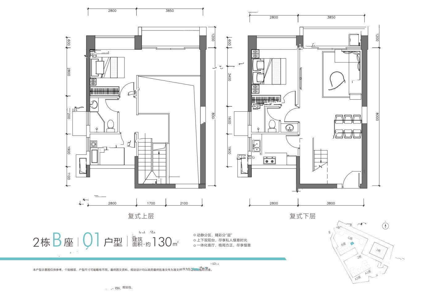
正东名苑户型图

余房查询
  • 全部户型(8)
  • 1室(1)
  • 2室(1)
  • 3室(6)
成交价查询
余房查询
买房交流群 3042 人正在讨论深圳楼市
深圳买房交流群-65群(338)
楼盘评测报告

7.2

综合评分
楼盘品质
8
社区配套
6
区域价值
7.5

正东名苑楼盘信息

领取楼盘评测报告
基本信息
  • 楼盘名称: 正东名苑
  • 楼盘别名: 南光城市花园二期
  • 区域商圈: 南山 -科技园
  • 物业类型: 住宅
  • 参考单价: 83000元/㎡ 降价通知
  • 产权年限: 普通住宅70年
  • 开盘/加推: 2022-08-31 新开盘通知
  • 销售状态: 在售
  • 楼盘地址: 南山南山大道东,海德二道南侧,创业路北侧 发地址到手机
  • 售楼处地址: 南山区南山大道东,海德二道南侧,创业路北侧
建筑规划
  • 交房时间: 2024-07-30
  • 装修情况: 毛坯
  • 楼栋总数: 2栋
  • 规划户数: 642户
  • 占地面积: 18485㎡
  • 建筑面积: 109950㎡
  • 容积率: 6
  • 绿化率: 35%
  • 建筑类型: 板楼,超高层,高层
  • 主力户型: 1室(1) 、 2室(1) 、 3室(6)
  • 开发公司: 深圳市阳光华艺房地产有限公司
领取完整楼盘评测报告,楼盘优劣全知道
售卖资格
预售证号 发证时间 绑定楼栋
  • 粤(2018)深圳市不动产权第0147503号 2022-08-22 1#
  • 粤(2018)不动产权证第0147503号 2018-05-17
查看全部
生活配套
  • 物业公司: 深圳市阳光华艺地产有限公司
  • 物业费: 6元/㎡/月 无别墅楼栋
  • 车位数: 800个
  • 周边配套: 项目的轨道交通较为通达,与11号线南山站、9号线南山书城站的直线距离都只有500米,步行时间约7-8**。项目南侧还规划有12号线,距离创业路站也是10**步程。

    教育学区方面,鸿瑞花园、南光城市花园等,都只有向南**和学府**的学位。向南**和南山**都在周边,但是否属于片区需要确认。

    商业方面,正东名苑和华彩新天地直线距离500米,能享受其带来的集中商业,更大型的购物中心海岸城也不过1公里左右距离。

领取完整楼盘评测报告,楼盘优劣全知道
楼盘介绍

项目介绍

正东名苑原为南光村旧改,位于南山中心区繁华地段,周边商业、地铁、文体、教育等配套较为完善。项目未来将提供住宅6.1万平方米、共628户,办公3.77万平方米,1万平方米商业。项目的商业均用作回迁房。由于项目整体层数较高,容积率也达到了6.4,停车位共862个,车位比约为1:1.4。项目的以小户型为多,其中,小于90平方米的共494户,约占总户数的78.7%。

区位介绍

正东名苑项目位于南山大道东,海德二道南侧。地处南山中心区,距离11号线南山站大约500米,距离9号线南山书城大约400米。目前还有12号线南宝线创业路地铁站在建(22年竣工),距离大约是450米。如果是自驾,往西走到宝安中心区自驾大约28**,东往到福田金融中心自驾约26**,南走到蛇口自驾约20**,北走到留仙洞总部基地自驾约20**。正东名苑除了自带的1万平米的底商,周边有成熟的商业,可以满足基本的生活需求。

规划设计

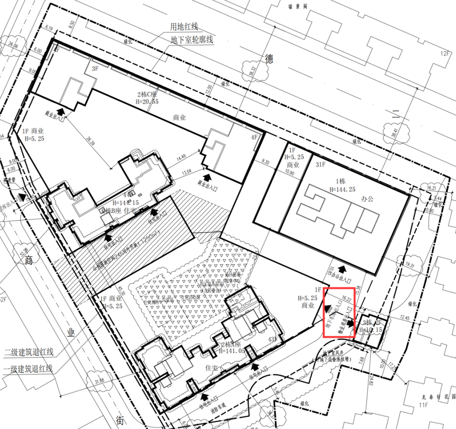
正东名苑根据规划,项目占地1.85万平方米,总建面约15.94万平方米,规划建设3栋3高层和一栋低层建筑。其中,1栋为办公,2栋A、B座为43、44层的高层住宅,3栋为垃圾站和公共卫生间。

景观特色

正东名苑根据规划,项目占地1.85万平方米,总建面约15.94万平方米,规划建设3栋3高层和一栋低层建筑。其中,1栋为办公,2栋A、B座为43、44层的高层住宅,3栋为垃圾站和公共卫生间。

建筑风格

正东名苑根据规划,项目占地1.85万平方米,总建面约15.94万平方米,规划建设3栋3高层和一栋低层建筑。其中,1栋为办公,2栋A、B座为43、44层的高层住宅,3栋为垃圾站和公共卫生间。

项目优势

正东名苑项目地理位置优越、交通便利、周边配套齐全,占尽地段优势,绝无仅有的小户袖珍盘。
更多信息,咨询楼盘置业管家
  • 楼盘点评
  • 卷价格,品质不减配 红山之上·都心理想生活范本 约31万㎡稀缺大社区大配套 建面约80-113㎡甄选3-4房 总价420万内任选80平三房 总价465万内任选89平三房

  • 星河·星悦云邸在地铁6号线阳台山东站旁,是一个约53万㎡的地铁口综合体,规划配套COCO City,在售是一期95-124㎡的三到四房,周边1公里有约28万㎡城市级阳台山森林公园,大浪文化、体育中心、妇幼保健院等。

  • 在售面积:96-99-116-118平 1栋一单元3梯5户,二单元3梯4户 2025年9月交房,使用率81%,44层 开发商:宏发 占地:4.8万平米 建面:55万平米

本楼盘交流群,3042 人正在讨论

房价走势 完整走势 ﹥
楼盘均价 25000元/㎡

环比上月持平

区域均价 36366元/㎡

环比上月持平

专属置业报告
您的购房需求
区域价值分析
猜你喜欢
买房群
看了这么久,立即咨询售楼现场优惠吧  ↓